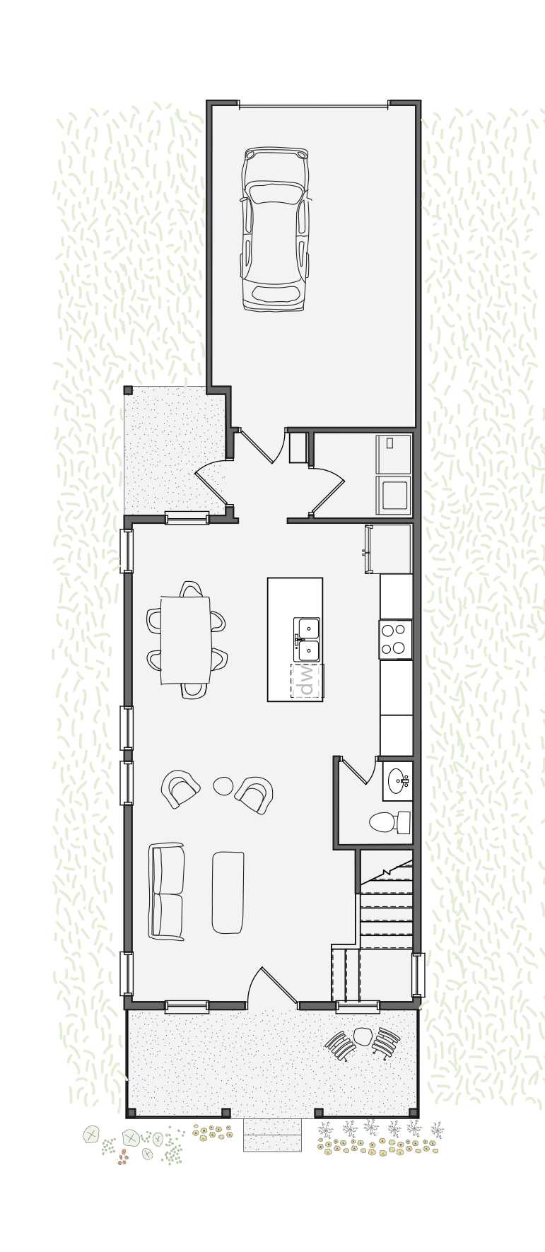
This home is built with all the best features of the Wheeler Home ‘Solo’ plan, thoughtfully compiled into a compact and efficient two-story New Solo. Just off the roomy front porch, the ground floor features kitchen, living, and dining spaces with direct access to a covered patio and an oversized one-car garage. The first floor also includes a functional mudroom, utility area, and a powder bath. Upstairs, you’ll find two bedrooms and two full bathrooms—one privately connected to the larger room, creating a primary suite oasis. Ideally located just steps from the neighborhood park, pool, retail, restaurants, and coffee shop, this home offers the best of life in the vibrant Wheeler District
*Marketing details are provided for informational purposes only. Prices, fees, and design selections are subject to change.


