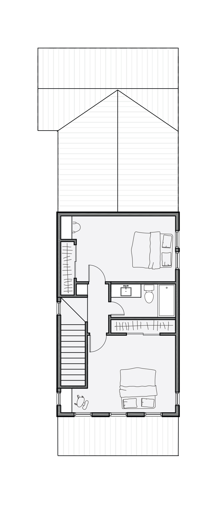
Charming, vibrant, and full of character, this Wheeler Cottage is a standout home in the heart of Wheeler District. This thoughtfully designed cottage home features extensive new landscaping and a beautiful side yard with stamped crushed granite, perfect for outdoor gatherings, container gardening, or simply enjoying your morning coffee in a serene setting. Inside, you’ll find the primary suite conveniently located on the first level, offering comfort and convenience. The main floor includes a stylish half bath, a cozy living area, and custom bamboo shades that add privacy. Upstairs, two generously sized bedrooms share a full bath, making it ideal for guests, family, or a home office setup. Additional highlights include a one-car garage, modern finishes, and the charm of living in one of Oklahoma City’s most beloved and iconic neighborhoods. Just steps from your door, enjoy Wheeler District’s community park, pool and playground. This home offers a lifestyle that blends comfort, convenience, and community.


























