Looking for a home and a long-term investment? This unique Wheeler District property offers the best of both worlds, featuring a fully equipped downstairs apartment paired with a beautifully designed main home above. This setup is perfect for generating rental income, hosting guests, or creating a flexible live-work arrangement.
Located among Oklahoma City’s iconic Rainbow Terrace Homes, this property stands out with its charming, colorful streetscape and one-of-a-kind curb appeal, instantly recognizable and loved within the Wheeler community.
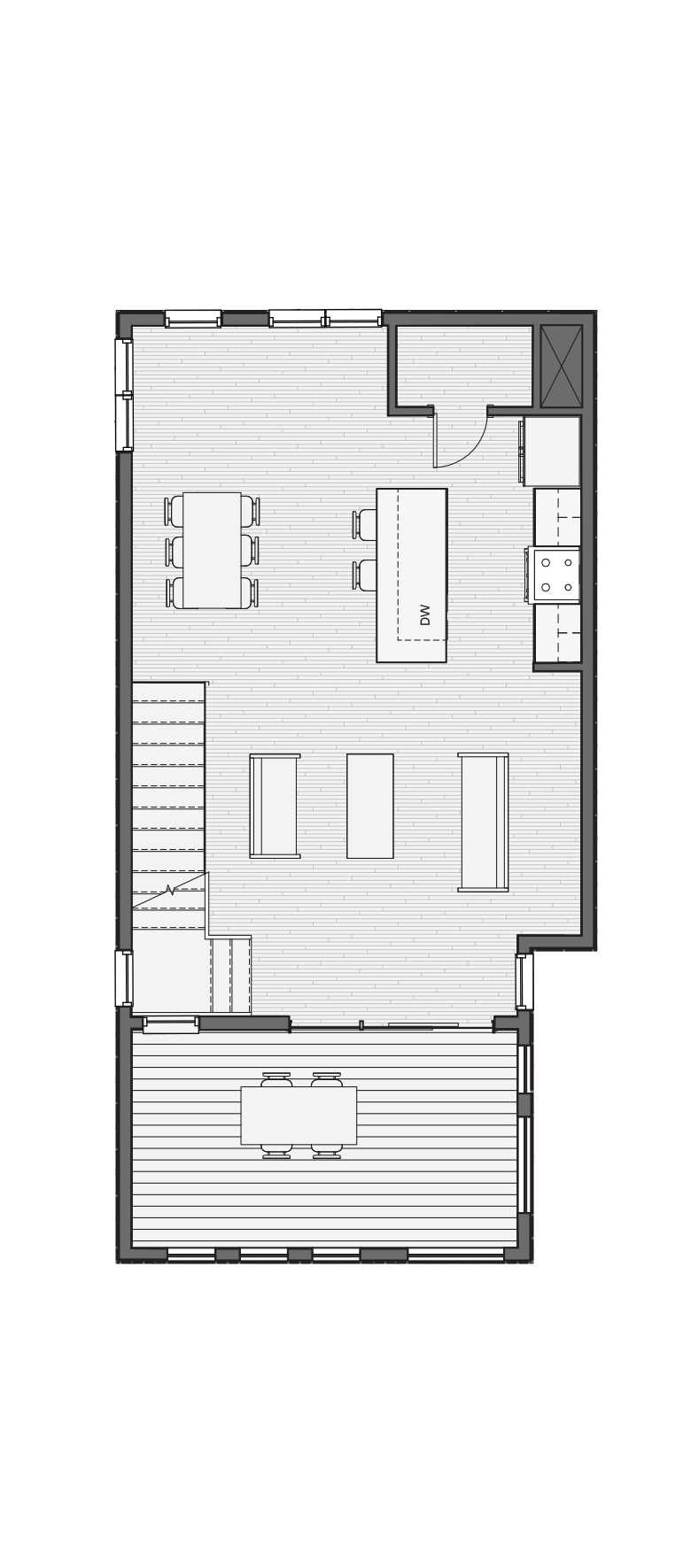
The upper residence is filled with natural light and thoughtful design, offering an open-concept living space that feels both elevated and inviting. The kitchen shines with ample countertop space and storage, seamlessly connecting to the dining and living areas. Spacious bedrooms and well-appointed bathrooms provide comfort and privacy, while stylish finishes throughout reflect the signature quality you expect in a Wheeler home.
Downstairs, the private apartment has its own entrance, making it an incredible opportunity for long-term rental income, short-term stays, or even a home office or studio. Whether you’re offsetting your mortgage or building your investment portfolio, this setup gives you options.
Located in the heart of Wheeler District, you’re surrounded by parks, walking trails, local shops, and one of OKC’s most active communities. It’s the kind of place where lifestyle and opportunity come together effortlessly.
*Marketing details are provided for informational purposes only. Prices, fees, and design selections are subject to change.































